
Комутаційна шафа 19” 12 юнітів серії MGSWL від компанії CMS, має полегшену металеву конструкцію та використовується для побудови СКС, ВОЛЗ, систем відеоспостереження та СКД. В шафі розміщують патч-панелі, які комутують з активним мережевим обладнанням за допомогою мідних та оптичних патч-кордів. Направляючі в шафі розміщені на відстані 19 дюймів (482,6 мм), та регулюються по глибині, що дозволяє виконати налаштування під конкретний тип обладнання. Конструкція комутаційної шафи включає вісім основних елементів, що дозволяє зібрати її одній людині за 15-30 хвилин, незалежно від кількості юнітів по висоті.
• Несуча конструкція шафи має підсилюючі елементи, внаслідок чого здатна витримувати значні навантаження без деформації;
• Серверна шафа виготовлена з металу: каркас і напрямні 1,5 мм, стінки та двері 0,8 мм;
• 19” напрямні мають спрощену конструкцію та не промарковані, можна встановити додаткові задні 19 дюймові напрямні від шаф MGSWA;
• Передні дверцята обладнані прозорим акриловим склом;
• Комутаційна шафа виготовлена в кліматичному виконанні IP20;
• Вентиляційні отвори для кріплення вентиляторів 120 мм розташовані на верхній та нижній панелях. Рекомендовано встановлювати знизу вентилятор на вдув, зверху на видув, відповідно до циркуляції гарячого повітря;
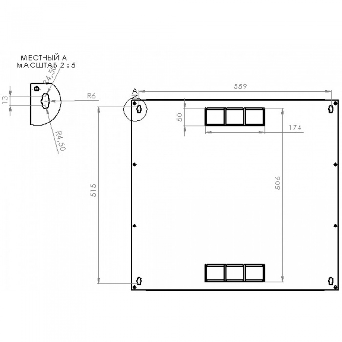
• Кабельні вводи розташовані з трьох сторін: на верхній і нижній поверхні та два отвори на задній стінці. На металі присутня висічка для виламування отвору необхідного розміру. Можливе регулювання кабельного вводу в трьох розмірах, це: 58x50, 116x50 та 174x50 мм;
• У шафі не передбачено встановлення ніжок. Шафу можна використовувати виключно для настніного монтажу;
• Передні та бічні двері зачинаются на замок;
• Шафа пофарбована порошковою фарбою чорного або сірого кольору;
• Отвори для кріплення шафи розташовані на задній частині несучого елементу каркасу та мають діаметр від 9 до 12 мм;
• Шафа комутаційна постачається в мінімально необхідній комплектації, задні направляючі, вентилятори, термостати, полиці, поворотна рама, кабельні організатори замовляються окремо, якщо необхідно;
• Шафа CMS поставляється в розібраному вигляді, в картонній упаковці;
Потрібна консультація? Напишіть нам - допоможемо з вибором!